Objektbeschreibung
Vermietet wird eine Bürofläche mit ca. 133,25 qm im 1. Obergeschoss einer Logistikimmobilie – der GVZ-Halle Güterverkehrszentrum 10 in Göttingen. Die Fläche eignet sich ideal für Unternehmen, die trotz allem eine ruhige aber auch funktionale Büroeinheit in einem gewerblich geprägten Umfeld suchen.
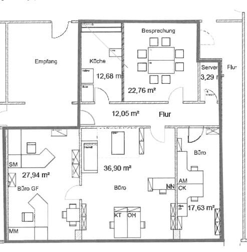
Die Einheit umfasst mehrere Büroräume sowie einen separaten Besprechungsraum und eine Teeküche. Ein Büro ist als Durchgangsbüro angeordnet und kann als Projekt-, Team- oder Vorzimmer genutzt werden.
Die Nutzung der Logistikfläche des Gebäudes ist nicht Bestandteil des Meistgebots. Bei zukünftigem Flächenbedarf besteht perspektivisch die Möglichkeit die Büroflächen zu erweitern.
Die Sanitäranlagen befinden sich als Gemeinschaftsflächen im Gebäude auf der gleichen Etage und werden von den Mietparteien gemeinschaftlich genutzt.
Weitere Informationen finden Sie auf der ImmoScout24-Webseite
Lage
Die Bürofläche befindet sich im Güterverkehrszentrum 10 in Göttingen in einem etablierten Gewerbe- und Logistikstandort mit guter Verkehrsanbindung.
In direkter Nachbarschaft liegt der Galluspark. Dort befinden sich unter anderem Einkaufsmöglichkeiten sowie ein Fitnessstudio, sodass Besorgungen oder sportliche Aktivitäten bequem in der Pause oder nach der Arbeit möglich sind.
Ebenfalls in unmittelbarer Nähe befindet sich das Sartorius Quartier mit weiteren gastronomischen und gewerblichen Angeboten.
Das Umfeld ist geprägt von Unternehmen aus Logistik, Gewerbe und Dienstleistungen und bietet eine gute Erreichbarkeit für Mitarbeitende, Kunden und Geschäftspartner.
Ausstattung
- Gesamtfläche: ca. 133,25 m² Bürofläche
- Lage im 1. Obergeschoss
- Teeküche mit Küchenzeile, Kühlschrank und Spülmaschine
- Besprechungsraum vorhanden
- 3 Büroräume, davon ein Durchgangsbüro
- Teppichboden in den Büroräumen
- pflegleichter Bodenbelag im Küchenbereich
- Gemeinschaftlich genutzte WC-Anlagen im Gebäude
- Bürofläche bei Bedarf perspektivisch erweiterbar
- Büro-/Praxisfläche | 133,25 m²
- Etage(n) | 2
- Objektart | Büro-/Lagergebäude
- Anzahl Parkflächen | 3
- Bodenbelag | Teppichboden
Kosten
- Miete pro Monat | 1.332,75 €
- Nebenkosten | 399,75 € pro Monat
- Kaution | 3.700 €
- Provision für Mieter | Keine
- Preis/Parkfläche | 25 €
Bausubstanz & Energieausweis
- Baujahr | 2006
- Objektzustand | gepflegt
- Qualität der Ausstattung | Normal
- Heizungsart | Gas-Heizung
- Energieausweis | liegt zur Besichtigung vor
Alle Angaben sind nach bestem Wissen zusammengefasst. Irrtum und Zwischenvermietung behält sich die Gesellschaft für Wirtschaftsförderung und Stadtentwicklung Göttingen mbH vor. Diese Informationsgrundlage ist eine Vorinformation, als Rechtsgrundlage gilt allein der abgeschlossene Mietvertrag.
Gerne präsentieren wir Ihnen die Einheit im Rahmen einer persönlichen Besichtigung und freuen uns auf Ihre Kontaktaufnahme.